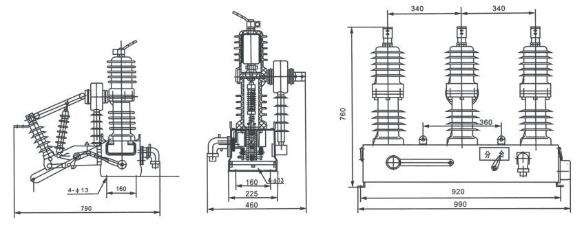
10KV柱上真空开关ZW32-12安装尺寸图

一、产品概述
一)主要用途
ZW32-12型户外柱上高压真空断路器(以下简称断路器)是额定电压12KV、三相交流50HZ的户外配电设备。主要用于配电网断开、关合电力系统中的负荷电流、过载电流及短路电流。适用于变电站及工矿企业配电系统中做保护和控制作用,更是用于农村电网及频繁操作的场所。适用于城网、农网改造的需要。
二、引用标准
GB1984--1989 《交流高压熔断器》
GB/T11022--1999 《高压开关设备和控制设备标准的公用技术要求》
GB311.1--1997 《高压输变电设备的绝缘配合》
GB3309--1989 《高压开关设备在常温下机械试验》
DL403 《10-35KV高压真空断路器订货技术要求》
三、使用的环境条件
1、海拔高度 2000米
2、周围空气湿度 -40℃~+45℃
3、风速 ≤35m/s
4、污秽等级 IV级
5、安装场所 无易燃、爆炸、化学腐蚀的场所
6、地震强度 ≤8级
四、主要特点
1、 断路器采用三相支柱式结构,具有断开性能稳定可靠。无燃烧和爆炸危险、免维护、体积小、重量轻和使用寿命长等特点。
2、 断路器采用全封闭结构,密封性能好,有助于提高防潮、防凝露性能,适应于高温潮湿地区使用。
3、 三相支柱及电流互感器采用户外环氧树脂固体绝缘,具有耐高低温、耐紫外线、耐老化的特点。
4、 操作机构采用小型化弹簧操作机构,分合闸能耗低,机构传动采用直动传动方式,分合闸部件少,可靠性高。操作机构置于密封的机构箱中,解决了机构腐蚀的问题,提高了机构的可靠性。
5、 断路器的分合闸操作可采用手动或电动操作给远方操作。可与控制器配合实现配电自动化,也可与重合器控制器配合组成重合器。
6、 断路器可以装设二相或三相CT,供过电流自动脱扣保护智能控制器进行信息分析。
7、 断路器重量70kg左右。
整体安装尺寸:高×宽×深 700×880×235(不带隔离刀)
700×1075×685)(带隔离刀)
五、产品型号
ZW32-12/T630-20
ZW---------户外真空断路器
32----------设计序号
12---------额定电压(KV)
T-----------弹簧操作机构(或永磁操动机构)
630-----------额定电流(A)
20-----------额定短路断开电流(KA)
|