欢迎光临浙江许高电力科技有限公司

全国服务热线:13868746508
上一张 下一张
公司新闻

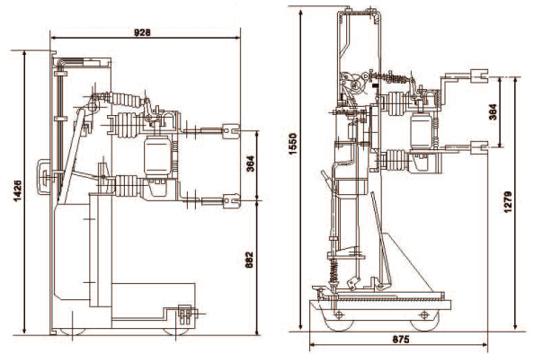
KYN1-12铠装移开式交流金属封闭开关设备

发布时间:2019-05-08 浏览次数:1751

KYN1-12铠装移开式交流金属封闭开关设备用于额定电压为3-lOKV、50Hz,额定电流630A~3150A三相交流单母线及啦母线分段系统,作为接受和分配电能之用。


1.环境温度:上限+40℃,下限一25℃。
2.海拔高度不超过1000m。
3.相对湿度:日平均值不大于95%:月平均值不超过90%。
4.地震烈度不超过8度。
5.没有火灾、爆炸危险、严重污秽、化学腐蚀及剧烈振动的场所。

1.有安全的一次触头隔离活门,手车在工作位置与进出位置之间运动时,隔离活门自动打开或关闭,保证了带电检修的安全。
2.有足够的电气绝缘强度。柜内相间、相对地的空气距离不小于125mm。
3.主母线采用“品”字形布置,垂直安装,降低了回路短路时电动力的影响。
4.操作简便、省略,配有蜗轮、蜗杆推进机构。
5.配有长寿命的真空灭弧室、操动机构,使维修工作量大大减少。

新一篇:H-RW跌落式熔断器
旧一篇:CT8-113弹簧操动机构