| KYN1-12铠装移开式 | |
|
KYN1-12铠装移开式概述
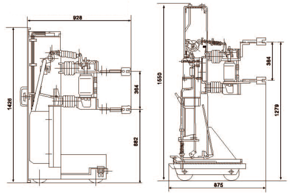
KYN1-12、JYN2-12型移开式交流金属封闭开关柜系列手车是三相交流50Hz的户内装置,除用于配电系统作配电断路器外,还适用于控制及保护电流变压器、高压电动机、开合电容器组等操作比较频繁的场所。 手车是开关的核心部件之一-,用钢板弯制焊接而成,底部装有四只滚轮,能沿水平方向移动,还装有接地触头、导向装置、锁定机构及手车进出手摇机械装置。 手车有断路器手车、电压互感器手车、电压互感器避雷器手车、所用变压器手车、隔离手车及接地手车七种。 KYN1-12铠装移开式外形安装尺寸
|
|

全国服务热线:






